Heiner Kramps GmbH Ihr Partner im schlüsselfertigen Hochbau seit über 30 Jahren
Heiner Kramps GmbHIhr Partner im schlüsselfertigen Hochbau seit über 30 Jahren

Eigentumswohnungen in Elsen!

Alle 10 Einheiten verkauft!

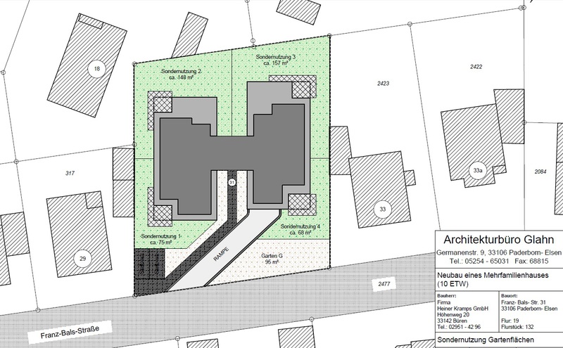
Neubau eines Wohnhauses aus zwei freistehenden Baukörpern mit jeweils 5 Eigentumswohnungen in ruhiger und zentrumsnaher Lage von Paderborn-Elsen.

Eine zeitgemäße Architektur in attraktiver Lage, mit nur zwei Geschossen, einem Staffelgeschoss sowie Kellergeschoss mit Tiefgarage und Aufzugsanlage.

Ausstattung

In zwei freistehenden Baukörpern entstehen jeweils fünf barrierefreie und energieeffiziente
Eigentumswohnungen in unterschiedlichen Größen, mit hochwertiger schlüsselfertiger Ausstattung:

 

  • KfW Effizienzhaus 70
  • wirtschaftliche Heizungstechnik mit Fußbodenheizung
  • Solaranlage für Warmwasseraufbereitung
  • kontrollierte Wohnraumlüftung mit Wärmerückgewinnung
  • 3fach Wärmeisolierverglasung mit elektrischen Rollläden
  • Massivbauweise mit erhöhtem Schallschutz
  • barrierefrei
  • Tiefgarage
  • 2 separate Kellerräume je Wohnung

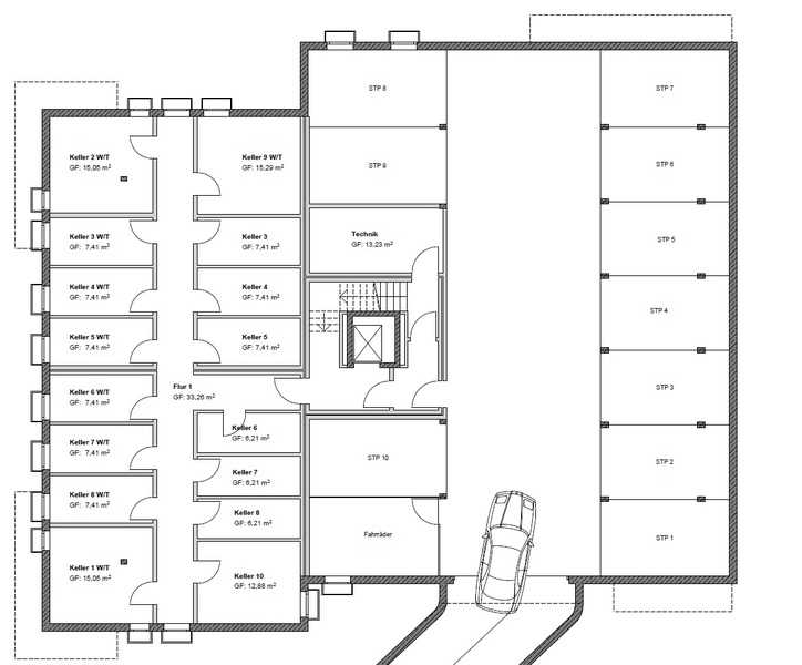
Grundrisse

Für weitere Informationen und detaillierte Grundrisse der jeweiligen Wohnungen, setzen Sie sich bitte mit uns in Verbindung!

Lage

Das Objekt befindet sich in einer verkehrsberuhigten Spielstraße (Franz-Bals-Straße 31), auf einem großzügig geschnittenen Grundstück im westlichen Teil von Paderborn-Elsen, eingebettet in eine gewachsene Wohnstruktur und umgeben von Grünanlagen mit teilweise altem Baumbestand.

Durch die zentrale Lage können alle Dinge des alltäglichen Bedarfs bequem zu Fuß oder per Rad
erledigt werden. Zahlreiche Sport- und Freizeitmöglichkeiten bieten sich durch den hiesigen
Sportverein TuRa-Elsen, sowie den Nesthauser- und Lippe See und die weitläufige naturnahe Elser Heide.


Bushaltestellen des ÖPNV befinden sich in unmittelbarer Nähe des Objekts und werden in Richtung Paderborn-Zentrum im 15 Minutentakt angefahren.


Die Anschlusstellen der Autobahn A33 (Schloß-Neuhaus und Paderborn-Elsen), sind mit dem Auto in 5 Minuten zu erreichen, ebenso die Bundesstraßen B1 und B64.

Franz-Bals-Straße 31, 33106 Paderborn-Elsen

Hier finden Sie uns:

Heiner Kramps GmbH
Höhenweg 20
33142 Büren

 

Telefon: 02951-4296
Fax: 02951-7609

 

E-Mail:

kramps-gmbh@t-online.de

Druckversion | Sitemap
© Heiner Kramps GmbH

Anrufen

E-Mail

Anfahrt