Heiner Kramps GmbH Ihr Partner im schlüsselfertigen Hochbau seit über 30 Jahren
Heiner Kramps GmbHIhr Partner im schlüsselfertigen Hochbau seit über 30 Jahren

Neubau von KfW 70 Doppelhäusern mit 163m² Wohnfläche in Paderborn-Elsen Ratsbruch

Alle Doppelhäuser bereits verkauft!

Das Haus besticht durch seine moderne Gestaltung und durch seine großzügige Raumaufteilung.


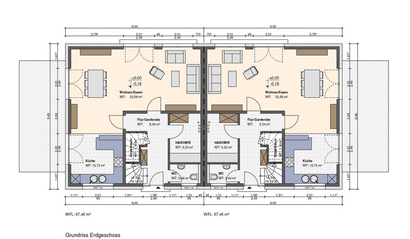
Im Erdgeschoß befindet sich der 34 m² große Wohnbereich, sowie die 16 m² große Küche. Zusätzlich bietet das Erdgeschoß neben der repräsentativen Diele noch einen großzügigen Hauswirtschaftsraum sowie ein Gäste-WC.

Im Obergeschoß befinden sich zwei großzügige Kinderzimmer, ein Elternschlafzimmer sowie ein großes Badezimmer.

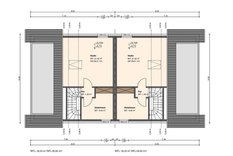
Zusätzlich besteht die Möglichkeit den Spitzboden mit über 38m² Grundfläche auszubauen.

 

Eine Rohbaubesichtigung ist nach Absprache jederzeit möglich.

 

Individuelle Wünsche können berücksichtigt werden. Ebenfalls sind Eigenleistungen möglich!

Lage

Die Doppelhaushälften befinden sich im Ratsbruch, einer Sackgasse in ruhiger, traumhafter und familienfreundlicher Lage, in der besten Wohnlage in Paderborn-Elsen.

Kindergarten, Bushaltestellen sowie Einkaufsmöglichkeiten befinden sich in unmittelbarer Nähe.

Ausstattung

Alle Kramps-Häuser werden in massiver Bauweise erstellt und mit regenerativen Energien ausgestattet.

Profitieren Sie von den vielen attraktiven Inklusivleistungen, wie z.B.:

  • 3-fach Isolierverglasung
  • Solaranlage für Warmwasseraufbereitung
  • Fußbodenheizung in allen Räumen
  • Blower Door Test zum Nachweis der Luftdichtigkeit des Gebäudes
  • uvm.

Hier finden Sie uns:

Heiner Kramps GmbH
Höhenweg 20
33142 Büren

 

Telefon: 02951-4296
Fax: 02951-7609

 

E-Mail:

kramps-gmbh@t-online.de

Druckversion | Sitemap
© Heiner Kramps GmbH

Anrufen

E-Mail

Anfahrt